Разыграть по правилам
Для семьи с двумя маленькими детьми архитектор Александр Кривицкий создал тёплый, атмосферный, чувственный и одновременно функциональный интерьер в стиле contemporary

Автор проекта Александр Кривицкий: «Во главе угла — функциональность и эргономика помещений, чёткая иерархия объёмов и их логическая взаимосвязь, а также разумное использование пространства. Среди этой стройной в плане композиции выделяется изогнутая перегородка, отделанная деревом, придающая интерьеру эмоциональность, динамику, интригу, которая остаётся при этом важным функциональным элементом. Я часто использую подобный приём при создании интерьеров как раз потому, что в нём чудесным образом форма вступает в гармоничный союз с функцией».

С заказчиками Александр Кривицкий знаком давно: несколько лет назад он спроектировал для них загородный дом и оформил его интерьеры в лаконичном скандинавском стиле. В городской квартире хозяева попросили архитектора немного сменить настроение. «Если в загородном доме царит спокойствие и умиротворение, то здесь хотелось больше страсти, больше красок, эмоций, драматургии за счёт цвета, фактур, напряжённых линий», — объясняет Александр концепцию интерьера.









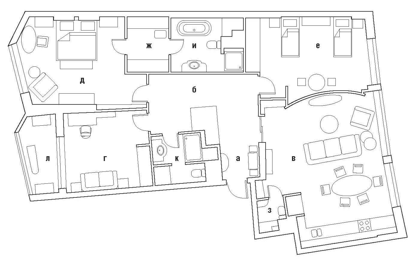
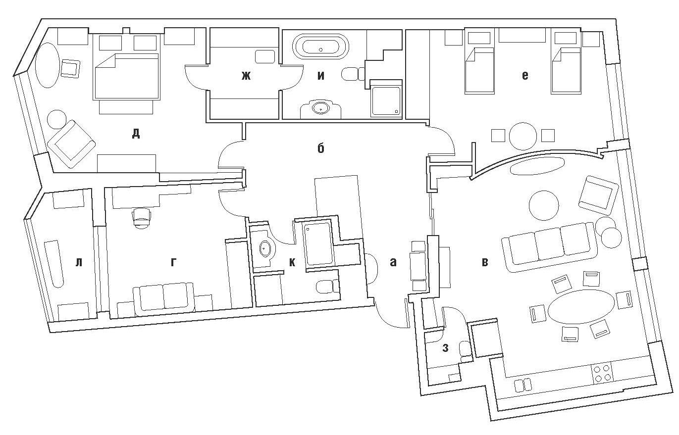
Здание, где находится квартира, имеет изогнутую форму, от чего в плане объём напоминает неправильный веер. Поэтому первостепенная задача, вставшая перед архитектором,—превратить квартиру с неправильной планировкой в удобное и комфортное жильё для семьи с двумя маленькими детьми. Александр постарался привести комнаты к более правильным очертаниям с углами в 90 градусов, при этом места сочленений неизбежно получились под разными углами. Больше всего досталось холлу–коридору: он собрал в себе все острые и тупые углы, какие только могли быть, поскольку именно вокруг него сгруппировались основные помещения. Стены, образующие его периметр, автор проекта объединил лепным декором в виде неоклассических молдингов, в центре установил объём (из шкафов для одежды) правильной формы и отделал его шпоном ореха с вертикальной раскладкой. «В холле появились два независимых, но прекрасно структурированных элемента, — поясняет Александр,— контрастная отделка (лепной декор и натуральное дерево) в данном случае визуально сглаживают неправильные пропорции помещения. Завершает композицию напольное покрытие из мрамора с зигзагообразным орнаментом. И цвет камня, и активный угловатый рисунок не случайны: всё работает на то, чтобы недостатки обратить в достоинства. Полукруглой стеной, как неким суставом между прямоугольниками гостиной и детской, как раз обыгран один из этих углов». Решил архитектор и вторую важную задачу — сформировал пространство, исходя из непростых запросов семьи. В первую очередь, оно сделано на вырост— в семье подрастают двое малышей, для которых были оборудованы общая спальня и комната для няни и бабушки. Когда дети подрастут, гостевую комнату займёт мальчик, а детскую — девочка. И это превращение произойдёт путём перестановки пары–тройки предметов мебели.


Автор проекта Александр Кривицкий
Фото: Михаил Лоскутов Стилист: Дарья Григорьева
