Взлетная полоса
Студия ub.design создала брутальный и динамичный интерьер квартиры для современного молодого человека

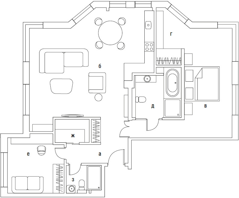
Интерьер квартиры на юго-западе Москвы его авторы из студии архитектуры ub.design создавали с учетом захватывающего панорамного вида на город. «Фактически это пентхаус на 25-м этаже, с высокими потолками и окнами в пол. Именно эта открытость городу легла в основу нашей работы над проектом», — рассказывает руководитель проекта Борис Уборевич-Боровский. Другим важным фактором было соответствие интерьера стилю самого хозяина — молодого человека, студента, который стоит в начале своей самостоятельной жизни. Поэтому квартира должна была превратиться в удобную площадку не только для отдыха и учебы, но также для встречи гостей и общения с друзьями. «Значит, главным и самым важным пространством здесь становится гостиная, которую мы соединили с зоной столовой и кухней», — поясняет Борис.














Гостиную буквально опоясывают большие панорамные окна, впускающие в интерьер динамичное настроение большого города. Мебель же здесь подобрана максимально удобная и комфортная для встречи больших компаний. Зону отдыха формируют широкие и низкие диваны MONONOVA, а также прочный и эргономичный журнальный столик. «В подборе мебели и аксессуаров мы были нацелены на предметы, которые помогали создать эргономичное пространство, где одинаково удобно и смотреть кино большой компанией, и общаться, и танцевать», — говорит Борис. Современный и во многом брутальный характер интерьера не лишил его домашних и уютных черт. Благодаря смелому соединению натуральных отделочных материалов и минимализма авторам проекта удалось достичь необходимого баланса. В высокие потолки вмонтировали технический свет, а для гостиной и зоны кухни подобраны лаконичные светильники. Полы же в единой общественной зоне обшили натуральным паркетом светлых тонов с практически классическим узором «елочка». Ноту классики в современный интерьер добавляет и стена в гостиной, выполненная из деревянных панелей с канелюрами. Домашнее тепло и динамичность соединил в себе масштабный ковер DОVLET HOUSE с архитектурным геометричным рисунком. Его мягкость выгодно контрастирует с металлом стульев и кухонными фасадами, чья холодная матовая поверхность оттеняет настенные панели из темного натурального дерева. «Таким образом интерьер проявляет свой брутальный, мужской характер, но при этом сохраняет необходимый любому жилому пространству уют и комфорт», — объясняет Борис Уборевич-Боровский. Аналогичный прием применили в интерьере спальни и всей приватной зоны. Часть стен хозяйской спальни декорирована панелями из темного тонированного дуба, полы при этом обшиты светлым паркетом. Еще один уровень контрастности заложен в сочетании общей монохромной гаммы и ярких акцентов в виде живописных картин. Работы Константина Zmogk Данилова появляются и в зоне гостиной, и в рабочем кабинете. В приватной же зоне цветовые акценты уступают место знаковым предметам мебельного дизайна. Настоящим украшением спальни и самостоятельным арт-объектом стало коллекционное кресло в честь Василия Кандинского (модель «Василий») от Марселя Брайера в стиле конструктивизма. Таким образом несколько уровней контраста — цветовой, фактурный и стилистический — сформировали динамичный и одновременной брутальный интерьер для современного молодого человека.
Общая площадь 120 м2

Авторы проекта архитекторы Борис Уборевич-Боровский, Алена Таева, Полина Поваренко, студия архитектуры ub.design (www.ub.design.ru)