Команда лаборатории архитектуры и дизайна LAD оформила на морском побережье интерьер дома в современном стиле для российской семьи из пяти человек
Текст: Ольга Вологдина
Вилла получилась очень уютной, камерной, совершенно не свойственной Испании, где за основу берётся белый. От этого цвета авторы проекта отказались совсем. Поверхности выкрашены в нейтральный бежевый или покрыты близким по тону натуральным травертином. На контрасте выступает цвет какао, появляющийся и в декоративных стеновых панно, и в кожаной отделке фасадов кухни, и в прожилках паркетного пола. Для ещё большего контраста и эффекта использовался чёрный цвет. Например, широкоформатный керамогранит на стенах и ступенях лестницы, обивка мебели в гостиной, чёрный тюль.
Из всех спален в доме открывается потрясающий вид на Средиземное море и есть выход на открытую террасу
Спальня хозяев. Кровать, кресло и пуф B&B Italia в обивке из чёрной бархатистой ткани создают ощущение мягкости и уюта
Несмотря на юный возраст дочери, интерьер её спальни не отличается по стилю от родительской. Стены оформлены натуральным травертином и интерьерным финишем насыщенного цвета какао. Светильник от Paolo Castelli в виде стеклянных капель с золотой пылью внутри создаёт приятный рассеянный свет и служит декоративным акцентом. Кровать, Twills
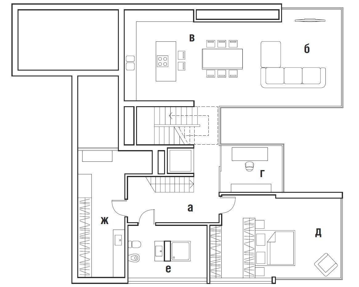
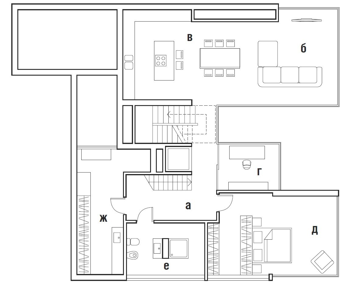
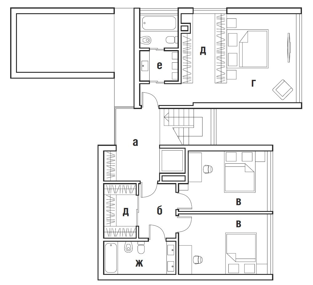
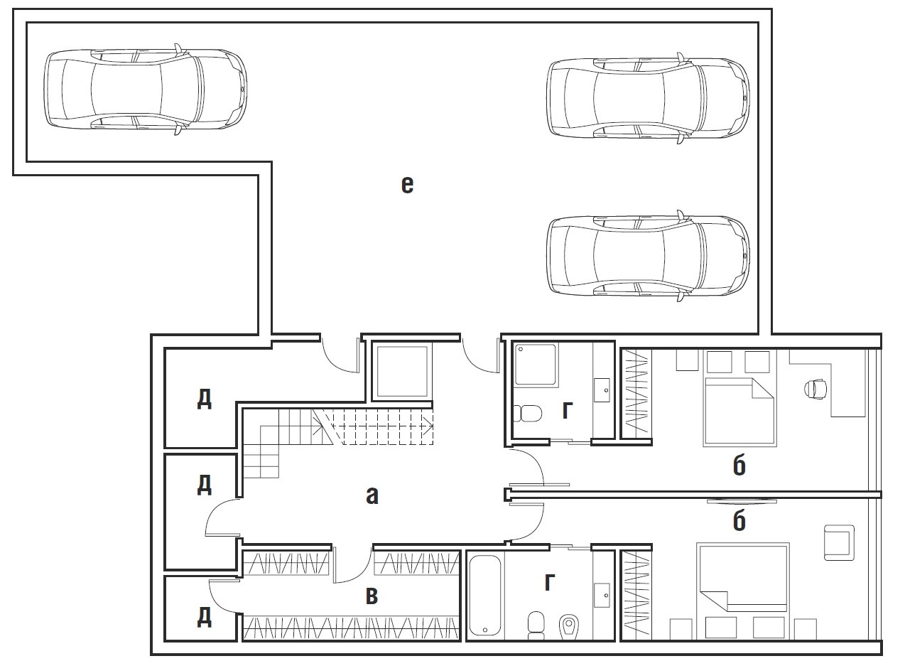
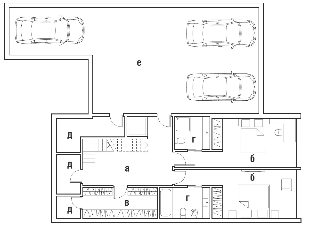
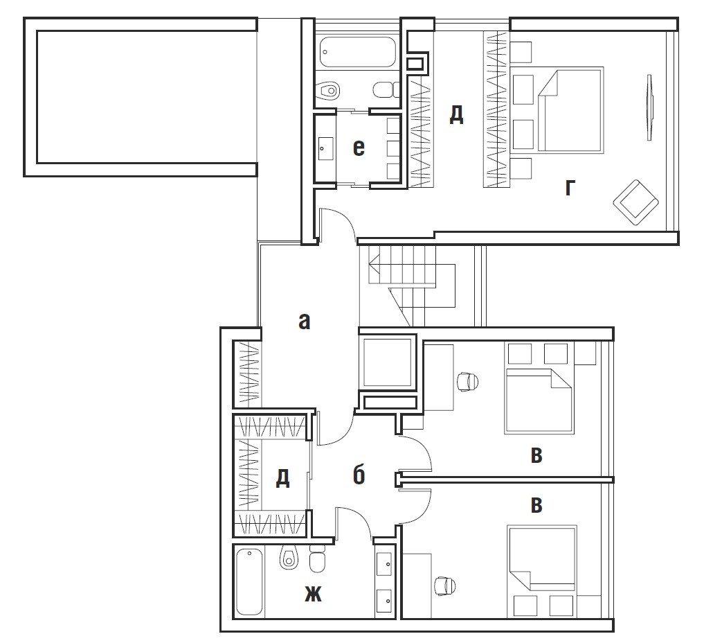
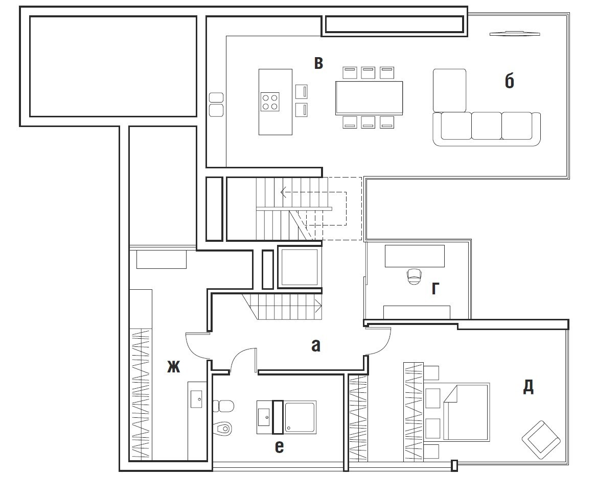
Каскадная архитектура оказала влияние на организацию планировки. Вход в дом и часть спален находятся наверху, а вот зона для приёма гостей — гостиная — располагается на среднем уровне, как и бассейн с открытой террасой и зоной отдыха
Дизайнеры намеренно не применяли хром, вместо него брали светильники и мебель в чёрной глянцевой отделке. «В своих работах ещё на этапе планировки мы сразу проектируем мебель, интегрируем её в пространство так, чтобы не оставалось непонятных ниш и закутков, — отмечает Василина Пашнина. — Таким образом, интерьер смотрится цельным, выглядит комфортным как в эстетическом, так и в функциональном плане. Многие предметы мебели в проекте являются иконами дизайна и никогда не выйдут из моды. В основе цветового решения — естественные, природные цвета и оттенки. Натуральные материалы визуально делают пространство респектабельным, дарят приятные тактильные ощущения. Это обеспечит интерьеру актуальность на много лет вперёд».
«В проектировании мы всегда придерживаемся нескольких принципов. База всех наших проектов — функциональность, лаконичность в решениях, многообразие фактур и натуральных материалов. Мы стараемся работать с большими плоскостями, придерживаемся геометрии в организации пространства, предпочитаем аскетичность в декоре. Вилла в Испании не стала исключением. Мы совершенно отошли от традиционного для этого региона стиля и цвета, создав современный, минималистичный интерьер в тёмной цветовой гамме, прохладный и освежающий по ощущениям». Михаил Кисенко
Спальня бабушки расположена на нижнем уровне. Стены отделаны полированным травертином. Кровать и кресло от Molteni&C обиты кожей цвета топлёного молока, а фасады шкафа выполнены из чёрного стекла
Кабинет отделён от гостиной стеклянными стенами и обставлен лаконично: из мебели здесь только письменный стол, стул и стеллажи производства фабрики Cassina
Фасады кухни Aster Cucine, отделанные натуральной кожей и травертином, интегрированы в пространство под узкими окнами. Для цельного восприятия и лаконичности стены окрашены в тот же цвет, что и кожа на фасадах кухни
Гостиная–кухня–столовая.. Пространство вокруг дивана Flexform окружено с трёх сторон раздвижными панорамными перегородками, которые создают эффект открытости и невесомости. В кухонные пеналы встроены винный и духовой шкафы, СВЧ–печь. Кухонная техника, Fulgor Milano
Ванная комната при спальне хозяев. Для отделки стен использован натуральный камень (Salvatori) с приятной бархатистой фактурой. Этой же марки раковина и подстолье с выкатными ящичками
Авторы проекта — дизайнеры: Василина Пашнина, Михаил Кисенко, Семён Васильев