Вечные ценности
В интерьере этой московской квартиры ощущаются одновременно и легкость, и весомость. Они не конфликтуют, а помогают создать комфортное пространство для жизни и подчеркнуть высокий статус владельцев

Анастасия Резникова, основатель студии ANRE ARCHITECTS, создала этот интерьер для семьи с двумя детьми. Реализация авторских замыслов под ключ заняла два года, и результат впечатляет: получилось гармоничное пространство в духе современной классики. В нем есть простор и свобода, и при этом надежность, основательность, весомость. «Мы хотели создать интерьер вне времени, в котором каждый элемент, от масштабных архитектурных решений до мельчайших деталей, отражает утонченный вкус и статус его владельцев», — объясняет автор проекта Анастасия Резникова.
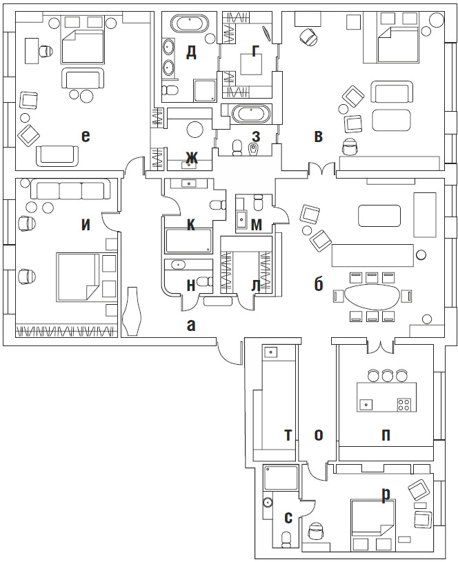
Проект объединил три квартиры, что позволило организовать анфиладную систему планировочных решений в духе дворцовой архитектуры ХIХ века — с арками и двойными дверями. Все двери в арках могут быть открыты, и тогда пространство гостевого коридора, гостиной и главной спальни становится единым и смотрится как большая галерея. Кухня находится на единой оси с гостиной-столовой; помещения разделены мраморным порталом с массивными дверьми и врезными стеклянными секциями. Благодаря таким решениям интерьер приобретает динамику, смену впечатлений. Продуманные световые сценарии — спокойный свет точечных торшеров, споты, ночная подсветка — поддерживают ощущение кинематографичности пространства. Весь свет интегрирован в систему «умный дом» (американская система LUTRON). Стены декорированы гипсовыми стеновыми панелями, отлитыми специально для этого интерьера по чертежам автора проекта. В отличие от молдингов, которые выступают над поверхностью стены, вырезы, интегрированные в единую плоскость гипсовых панелей, выглядят необычно, придавая стене графичность, лаконизм (и вдобавок такие панели обеспечивают отличную шумоизоляцию). Сверху панели окрашены качественной американской краской натуральных оттенков — благородного серого, глубокого серо-зеленого, бежевого, нежно-голубого. Тепло, мягкость и уют интерьеру придают льняные обои.





















На контрасте со светлыми оттенками текстиля и окрашенными гипсовыми панелями впечатляюще выглядят откосы, покрытые латунными листами серьезной толщины — 8 мм. Темно-коричневый оттенок латуни — результат специального оксидирования без финального покрытия лаком, поэтому материал будет «жить», постепенно набирая густоту цвета. Красивая параллель латунным откосам — тяжелые металлические стеллажи фабрики HENGE. Дополняют картину «настоящие», роскошные, полновесные мраморные порталы в отделке мрамором Calacatta Oro Gold, многослойная паркетная доска, созданная по старинной технологии, массивные двери, стекла и зеркала. При этом стекло с фацетом, преломляя свет, придает интерьеру легкость, живость и глубину. Такая работа с материалами, формами, смыслами — оммаж искусству старых мастеров. Здесь прочитывается французская история, поданная полунамеками: теплый оттенок краски, похожий на «парижский серый», укладка паркета «французская елочка», окна в пол. Современное искусство привносит нотку богемного шика. На фоне неоклассических стен очень хороша современная дизайнерская мебель, среди которой есть иконы дизайна, например кресла по дизайну Пьера Жаннере. Гармоничное сочетание утонченной французской классики, простых и элегантных архитектурных решений, культовые предметы дизайна — это и есть искусство. Вот то главное, к чему вела эту интерьерную историю ее автор.
Общая площадь 350 м2

Автор и главный архитектор проекта Анастасия Резникова
Генеральное управление и реализация студия ANRE ARCHITECTS