Свобода выражения
Команда Buro Bespoke создала вдохновляющий на открытия интерьер для семьи

«Заказчик обратился с этим проектом по рекомендации другого нашего клиента. Как это часто бывает — пришли в гости и увидели наш интерьер, качество работы. На первой встрече он сказал: «Сделайте интерьер, который будет вдохновлять нас каждый день». Нас также попросили предусмотреть много мест для хранения и избегать ярких цветов.
Хозяева были готовы к нестандартным решениям, а это всегда благодатная почва для дизайнера. Здесь мы много экспериментировали с материалами, использовали широкую палитру фактур и текстур, которые позволили создать образ нарядного, насыщенного деталями, утонченного интерьера. Но все элементы — от рисунка плитки в ванной до текстиля и светильников — сочетаются и поддерживают основную цветовую гамму, что делает пространство целостным и одновременно уютным», — рассказывает о дизайн-концепции руководитель бюро Анастасия Кацева.
Бюро Bespoke работает в современном стиле, для которого очень важна функциональность. Поэтому дизайнеры старались сделать интерьер не только красивым и стильным, но и практичным. В свою очередь, contemporary дает большую свободу в стилевом и художественном выражении. В данном интерьере прослеживаются явные классические приемы — лепнина, молдинги, паркет в елочку. В то же время модные детали — трековые светильники, люстра с кожаными ремнями, скрытые двери в алюминиевых рамах, кварцевый агломерат с выразительным рисунком — создают ощущение актуального современного интерьера, который будет радовать хозяев и прослужит им долгие годы.
На объекте много окон, панорамного остекления, что ограничивало возможности по расстановке мебели. «Нам хотелось сделать пространство легким, сохранить воздушность, избежать массивных линий в интерьере. Поэтому мы использовали большое количество зеркал для отражения света и различные сценарии освещения, — дополняет Анастасия Кацева. — Так, центральным элементом интерьера гостиной стало эффектное панно в стиле шебби-шик из состаренного зеркала, созданное компанией «Иванов Благих». Полки, расположенные поверх зеркала, играют роль стеллажа. Панно плавно и органично перетекает в ТВ-зону, декорированную натуральным кварцем и стеновыми панелями из шпона светлого дерева».
















Сердце квартиры — гостиная, объединенная с кухней-столовой. Здесь могут комфортно разместиться все члены семьи и провести вечер за просмотром кино, играми или общением. Уюта этой зоне добавляет паровой камин Dimplex, размещенный в нише под ТВ-панелью. В каждой комнате есть свои интересные дизайн-решения и декор, который хочется разглядывать. «Один из членов семьи увлекается орнитологией. Мы решили отразить это в оформлении. Так в нашем проекте появились две картины с изображением птиц. Обе картины выполнены на заказ, рамы под них мы изготавливали сами. Они обшиты замшевым покрытием от Яны Светловой, которое также используется в интерьере главной спальни в отделке стены, за которой находится гардеробная», — отмечает Анастасия Кацева.
Каждый кусочек пространства сделан фактически на заказ. «Многие идеи не имели готовых вариантов на рынке, поэтому мы разработали их сами, — говорит Анастасия. — С этой задачей прекрасно справились мастера компании «Стильные кухни и интерьеры», которых мы хорошо знали, как подрядчика для стандартных решений. Мы были приятно удивлены, насколько они могут реализовать сложные дизайнерские задумки. Пожалуй, это стало главной находкой проекта».
«Основным запросом клиента в интерьере сейчас является максимальное соответствие образу жизни и привычкам. Сегодня востребована более детальная кастомизация. Люди четко понимают, какой функционал они хотят от своего пространства. Для нас это означает более детальную проработку дизайн-проекта, чтобы учесть каждый нюанс. А также постоянный поиск новых подрядчиков для реализации всех идей и желаний наших заказчиков», — завершает рассказ Анастасия Кацева.
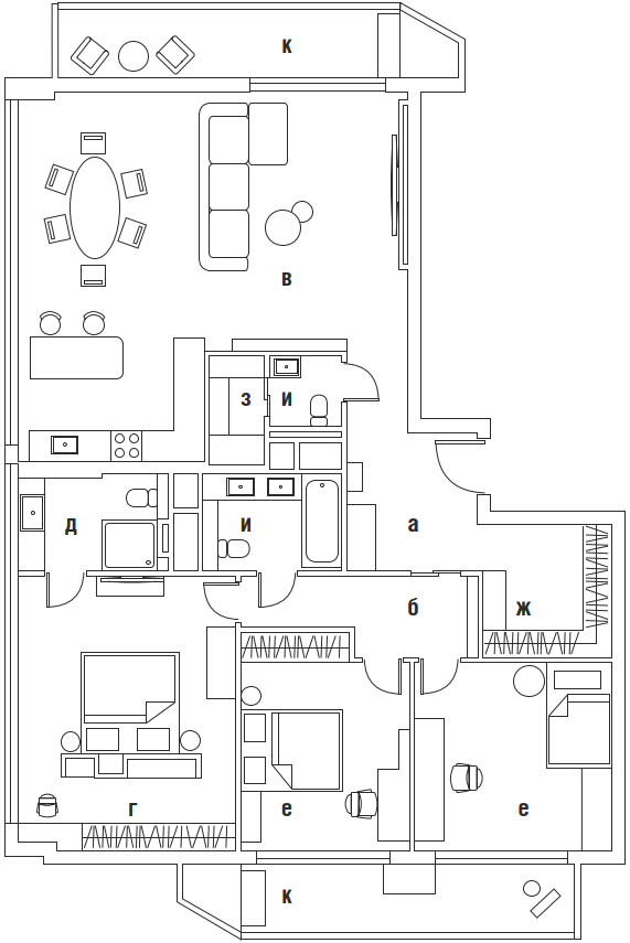
Общая площадь 153 м2

Фото: Ник Руденко. Стилист: Анастасия Корбут. Руководитель бюро Анастасия Кацева, дизайнер Ксения Игумнова, Buro Bespoke (www.burobespoke.ru). Изготовление мебели на заказ компания «Стильные кухни и интерьеры» (www.stilkuhni.ru). Изготовление зеркального портала и зеркал компания «Иванов Благих» (www.ivanovblagih.ru). Покрытия из искусственной замши Yana Svetlova Wallcoverings (www.yanasvetlova.com)