Смелый акцент
Минималистичный интерьер от Екатерины Деминой сочетает в себе тенденции современного дизайна и смелые авторские решения

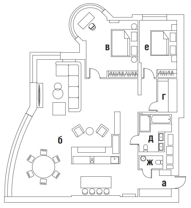
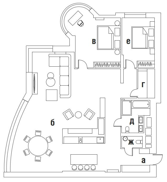
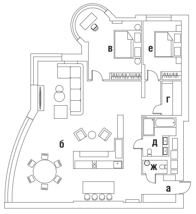
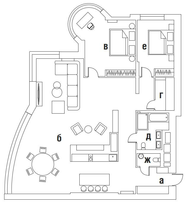
На 27-м этаже премиального жилого комплекса Mirax park в Москве располагается квартира с прекрасным видом на большое живописное озеро. Владельцы квартиры обратились к Екатерине Деминой с просьбой выполнить интерьер в стиле минимализм. Довериться архитектору во всем было легко, так как ранее Екатерина успешно разработала и сопроводила реализацию проектов офиса компании и двух ресторанов заказчика. «Доверие было абсолютное, — рассказывает автор проекта. — Мы с первого раза согласовали планировочное решение и мое видение 3d-визуализации. Задача была выполнить интерьер в стиле минимализм. Но так как квартира предназначена для временного проживания семьи, я предложила создать нечто интересное, смелое, то, что не каждый согласиться реализовать у себя дома». Главной задачей в перепланировке квартиры было сохранить воздушное пространство с окнами в пол и великолепным видом на Москву. Поэтому прихожая, кухня, столовая, гостиная, каминная зона и общий коридор являются единым помещением, где одна зона плавно переходит в другую. Все пространство пронизано естественным светом. Дополнительную роль играет изобилие зеркал, которые визуально еще больше придают объем помещению.




«Следуя японской философии, которая близка клиентам, я создала интерьер, преисполненный «чистотой», практичностью и лаконичностью форм, — дополняет Екатерина. — Композиция всех зон точная и ясная, без излишеств. Высокие шкафы до потолка с минимальным делением фасадов по вертикали и фрезерованными ручками визуально не утяжеляют объем, тем не менее они очень вместительные и функциональные. Основная цветовая палитра выполнена в оттенках серого: от темного графита до светлого и как акцент горчично-желтого». Одним из знаковых предметов интерьера является экстравагантный диван QUBO в акцентном горчичном цвете от российского производителя мебели Aatom. Уникальная форма дивана, похожая на пузыри, притягивает к себе все внимание. Поэтому интерьер гостиной строится вокруг него и служит фоном. Журнальный столик в гостиной, люстра над обеденным столом, рабочий стул в главной спальне тоже имеют одутловатую форму, будто из мультика. Этот сценарий поддерживают сюжеты картин. «Живописные авторские работы, — рассказывает Екатерина, — выполнены в цветовой гамме интерьера. Сюжеты были выбраны саркастические, с юмором. На картинах изображена жизнь кошек в мультяшном исполнении на фоне сицилийских домов. Этой идеей я хотела вызвать улыбку заказчиков каждый раз, когда они будут останавливаться в квартире».





Из необычных решений можно выделить светильники с циркадным циклом tunable white. Световые элементы меняют температуру света в зависимости от времени су ток. Утром более холодный свет, который способствует выработке кортизола, помогает проснуться и взбодриться. А к вечеру свет становится теплым, идеальным для подготовки ко сну.
«Стандартные решения не интересуют моих заказчиков, чему я очень рада. Всегда похвально придумать нечто новое, уникальное и, главное, поистине отражающее человека. Да, порой на это уходит много времени, зато результат и чувство удовлетворения безграничное!» — заключает Екатерина.





Общая площадь: 160 м2

Автор проекта, автор картин архитектор Екатерина Демина
Изготовление мягкой мебели компания Aatom
Производство корпусной и мягкой мебели по эскизам автора проекта компания LIORI
Изготовление и поставка светильников компания SWG
Производство и поставка инженерной доски компания FINEX
Комплектация ванных комнат под ключ и готовое оборудование компания «Ателье интерьеров»
Производитель и разработчик теневых карнизов и плинтусов компания «Теневой профиль»
