По парижской моде
Дизайнер Альбина Мухаметшина с любовью относится к парижским интерьерам и в оформлении своей собственной квартиры отразила присущий им эклектизм, а еще в процессе работы открыла в себе интерес к винтажу и антиквариату

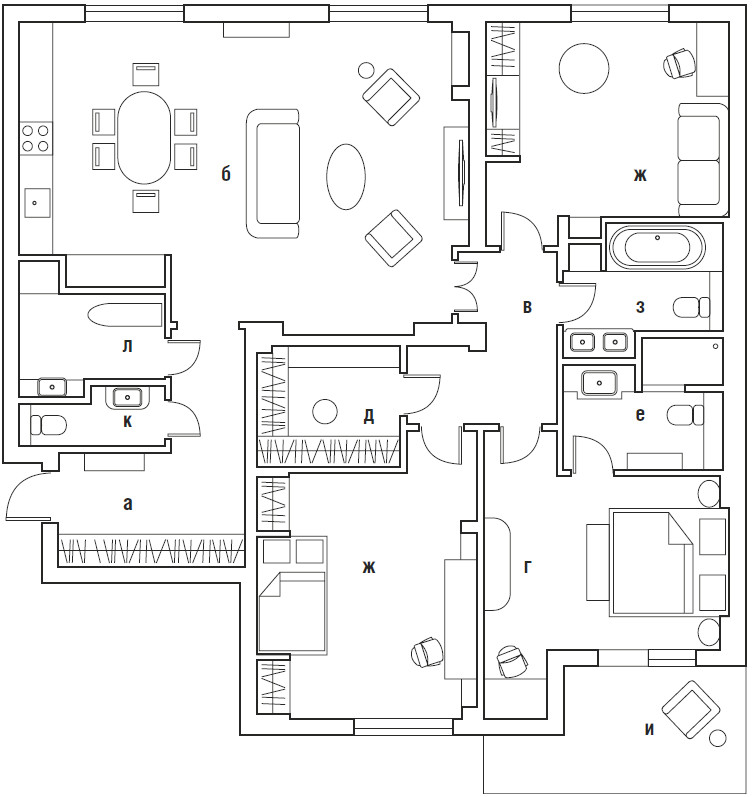
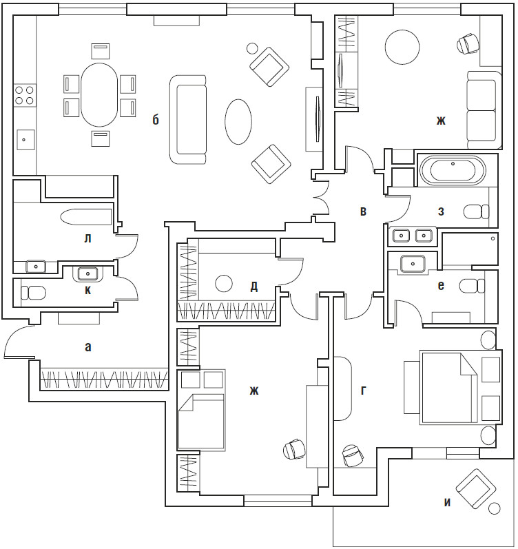
Интерьер этой квартиры в Казани Альбина Мухаметшина создала для себя и своей семьи. По признанию дизайнера, они с супругом долго искали жилье, возможности которого соответствовали бы ее представлениям об организации пространства, и в итоге остановились на двух смежных квартирах, находящихся в жилом комплексе бизнес-класса. «По проекту застройщика — это была одна большая квартира, но прежние владельцы разделили ее на две. Я сразу увидела потенциал в объединении смежных площадей и решила демонтировать все стены, кроме несущих: так появилась просторная квартира с функциональной планировкой для нашей семьи из четырех человек», — вспоминает Альбина. Согласно новому планировочному решению произошло деление квартиры на общую и приватную части. Самую темную и отдаленную от окон зону отдали под прихожую, гостевой санузел и постирочную; открытое пространство в центре квартиры заняла кухня-гостиная, а в самой большой части квартиры расположился блок личных комнат, состоящий из холла, хозяйской спальни, двух детских, санузлов и гардеробной — они деликатно отделены от остального пространства стеклянными дверьми.







«У меня было очень много разных идей на счет стилистики интерьера, но финальное видение сложилось уже в процессе работы. С самого начала были предопределены только два момента — дубовые полы французской елочкой и мрамор в ванной, — рассказывает автор проекта Альбина Мухаметшина. — Использование винтажных предметов, кстати, изначально не входило в мои планы. Но в ходе отделочных работ я вспомнила, что у нас на дачном чердаке завалялась пара отличных бабушкиных кресел, и решила примерить их в интерьере. Чуть позже случайно на одном из моих объектов на глаза мне попался журнальный столик советских времен, который хозяева собирались отправить в утиль. Я отвезла его на реставрацию, а после «поселила» у себя в гостиной. Так в нашем интерьере почти волшебным образом стали появляться предметы с историей. Что любопытно, после этого проекта я стала предлагать включение винтажных и антикварных предметов в проекты своим заказчикам и окончательно влюбилась в смешение разных эпох и стилей в одном интерьере!» В общественном пространстве квартиры можно выделить несколько функциональных зон: удобную гостиную, столовую и просторную кухню, оборудованную всей необходимой встроенной техникой. Мягкая зона гостиной оформлена современным изящным диваном на высоких ножках и двумя советскими креслами, обитыми серо-голубым велюром: их изогнутые подлокотники вторят округлым формам дивана, а деревянные ножки созвучны журнальному столику. Низкий комод второй половины ХХ века, доставшийся главе семьи от бабушки, дополняет мебельную композицию. В торце гостиной симметрично расположились двери из стекла и металла: одна из них отделяет общественную часть квартиры от приватной, вторая — сделана для симметрии и выполняет функцию фасадов стеллажа. Кухонная мебель изготовлена российской компанией Greta, фасады шкафов выполнены в темном ореховом шпоне и частично в светлой эмали, которая близка по цвету к стенам кухни-гостиной. Столовую группу на шесть персон сделали по индивидуальному заказу на местном столярном производстве. Разные по функционалу зоны кухни-столовой-гостиной объединены общей палитрой Little Greene — красками этого производителя окрашены стены и потолок. Холодные цвета стен контрастируют с медовым оттенком дубовой доски паркета и создают фон для мебели и предметов искусства.







В квартире три спальни, предназначенные для родителей и их детей — мальчика и девочки. Все личные комнаты имеют примерно равную площадь, но оформлены сообразно вкусам своих владельцев. По признанию хозяйки квартиры, они долго не могли определиться — делать одну большую ванную комнату для всех членов семьи или же разделить общую на две небольших. Победило ее давнее желание иметь пусть небольшую, но собственную ванную.
Альбина Мухаметшина: «Я тяготею к парижским интерьерам и, безусловно, хотела привнести что‑то от них и в этот проект. Высокие двери с багетом, гипсовая ажурная лепнина и паркет елочкой соседствуют с современными светильниками и простыми формами. Мне не очень близок минимализм, потому что для меня интерьер без плинтуса и карниза — как женщина без аксессуаров. Но зато я очень люблю цвет и умею с ним работать. Искренне верю, что дизайн способен влиять на мироощущение тех людей, для которых он создается».
Общая площадь 146 м2

Автор проекта дизайнер Альбина Мухаметшина (дизайн-студия Albina Muna, г. Казань)