Интерьер на счастье, 250 м2
Бюро Rubleva Design & Architecture объединило четыре квартиры на последнем этаже московской новостройки в единое элегантное и функциональное пространство общей площадью 250 кв. м.

Заказчики — супружеская пара, молодожены, которые обратились к Марии Рублевой и ее команде сразу после их свадьбы. Необычный момент: это бюро заказчикам порекомендовала организатор свадеб, которая была подписана на страничку Марии в социальных сетях и следила за ее творчеством, при этом лично они никогда не были знакомы.
«У каждого из наших заказчиков за спиной уже достаточно большой жизненный опыт, есть взрослые дети — рассказывает дизайнер, — и нам посчастливилось создать уютный дом для этой замечательной семьи». Заказчики нашли «своего» дизайнера, но оказалось, что у хозяйки и хозяина разные вкусы. Он любит, что называется, «тяжелый люкс», классику с золочеными элементами декора, яркие цвета, а хозяйка, наоборот, предпочитает легкие, воздушные, светлые, лаконичные современные интерьеры. Поэтому дизайнерам бюро предстояла нелегкая задача объединить пожелания обоих супругов и создать интерьер, в котором будет комфортно каждому члену семьи.
В итоге получилось пространство легкое, элегантное, современное. Здесь есть и элементы классики, например, лаконичная лепнина на потолке и стенах, классические модели дверей, шикарные итальянские люстры, каждая из которых — произведение искусства. При этом интерьер не выглядит ни вычурным, ни перегруженным. Дизайнерам удалось удачно вписать в общий контекст современную мебель, в том числе ультрасовременную функциональную кухню Valcucine. Один из секретов этого сочетания — в лаконизме как классических, так и современных форм. Другой — в утонченной палитре оттенков: это сложные светлые полутона, оттененные темными: сливочный, нежно-фисташковый, серо-коричневый.


















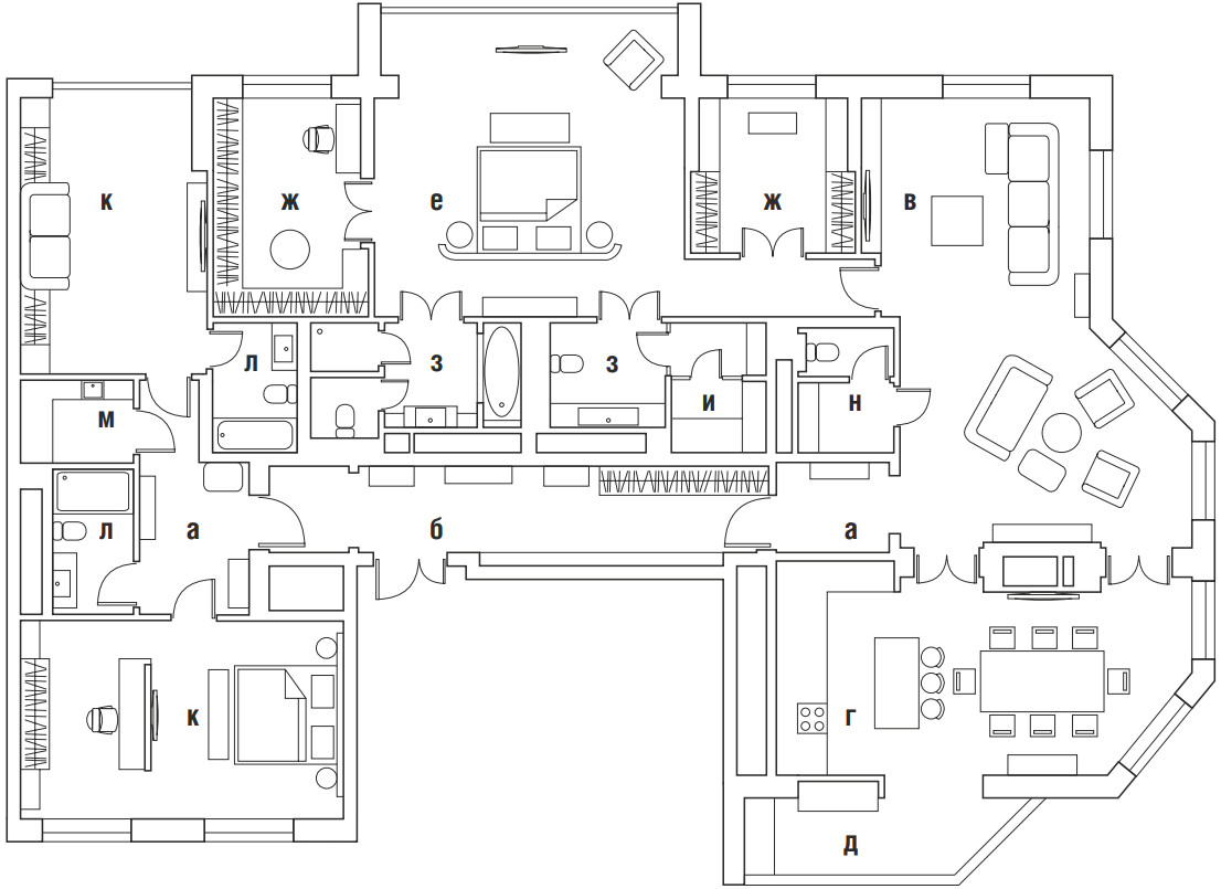
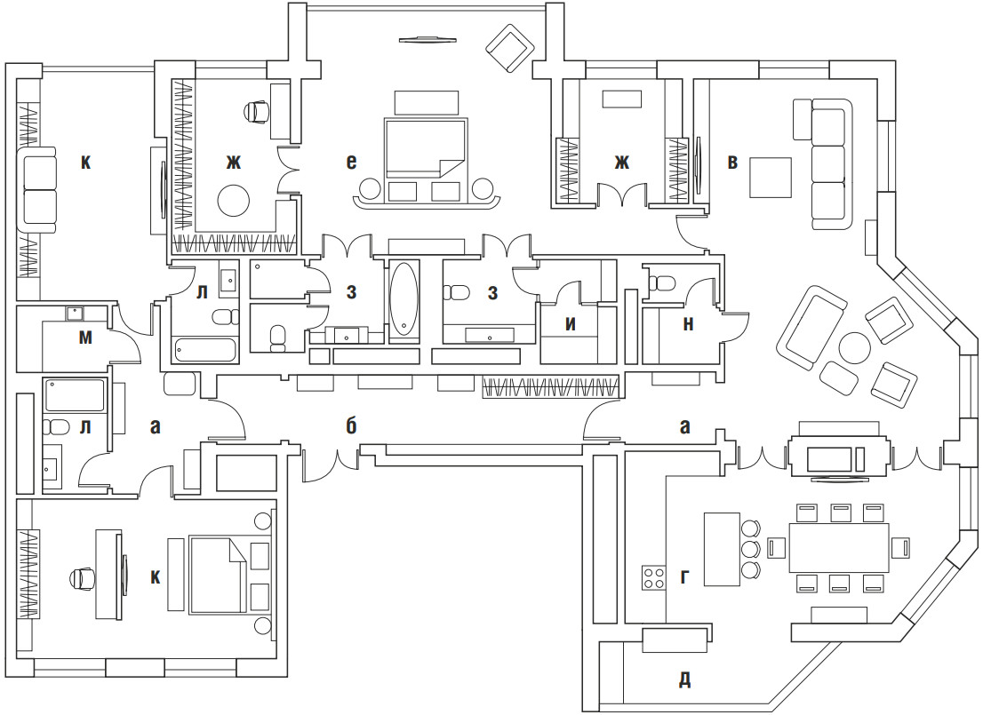
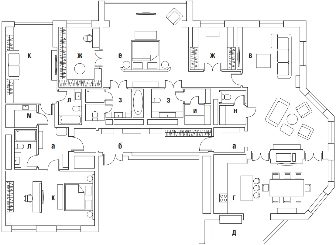
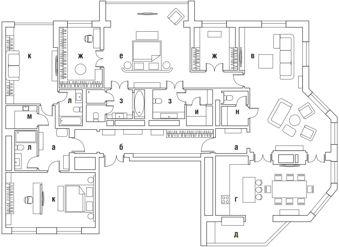
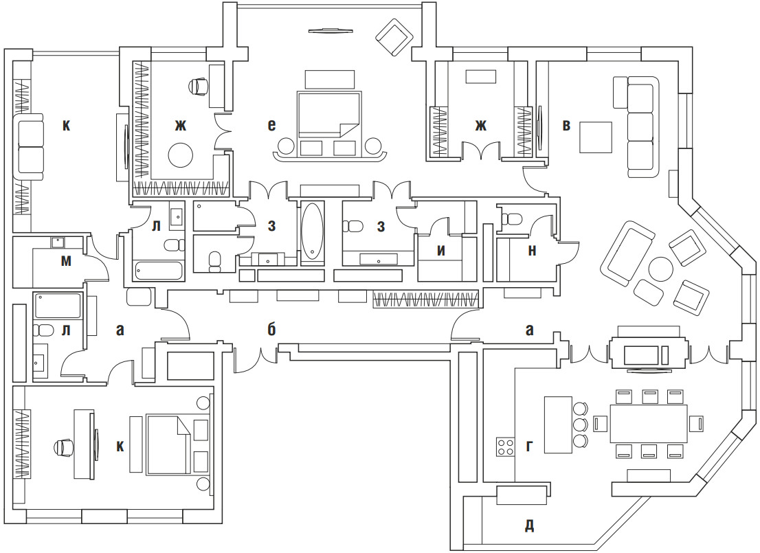
Третий — в том, с каким вкусом подобраны предметы искусства и дизайнерская мебель. Планировка двухчастная: справа от входа — взрослая, слева — детская часть квартиры. В свою очередь, и гостиная (она находится на территории родителей) делится на две части — ТВ-зону и малую гостиную, которая обозначена камином. Он появился тут не просто так: на самом деле в этом месте располагаются несущая стена и стояки с инженерными коммуникациями. «Эту конструкцию мы воспринимали как препятствие, она лишала гостиную «воздуха», — говорит Мария Рублева. — И мы решили превратить этот недостаток в достоинство, организовав зону с роскошным биокамином, которая стала центром и гостиной, и кухни-столовой». В гостиной — пара высоких дверей, расположенных симметрично по бокам камина; через них и сообщаются смежные помещения — гостиная и кухня-столовая. Таким образом каминная зона располагается в самой удачной видовой точке квартиры. Камин, оформленный слэбами из мрамора с уникальным природным рисунком, — это сердце квартиры.
Интересная планировка и в спальне: она достаточно большая, при ней спроектировали две гардеробные (мужская и женская) и два санузла. Кровать решили поставить посередине комнаты, напротив огромного окна, из которого открывается роскошный вид на Москву. Таким образом, движение в этой комнате задано вокруг кровати, но при этом благодаря словно «обнимающему» закругленному изголовью в спальне сохраняется эффект приватности.
Квартира расположена на последнем этаже дома, и поэтому здесь высокие потолки — 3 м 60 см. Великолепные арочные окна с латунными откосами подчеркивают их высоту и словно раскрывают интерьер вовне, в небо над городом. В современном доме никак не обойтись без смарт-технологий, и здесь они тоже есть: управляют освещением, шторами, создают микроклимат в квартире и так далее.
Общая площадь 250 м2

Дизайн и реализация: Rubleva Design & Architecture, руководитель Мария Рублева. Фото: Сергей Красюк. Стилист: Дарья Соболева
