Архитектор Ксения Маймина создала современное пространство в стиле минимализм для комфортной жизни большой семьи
Текст: Валерия Королева. Фото: Михаил Лоскутов. Стилист: Анастасия Корбут
Гостиная. Стена в зоне ТВ отделана панелями из латуни и темным стеклом, за которым скрыта телевизионная панель. В панелях также скрыта дверь, ведущая в спальню. За диваном установлена раздвижная перегородка, состоящая из четырех створок. В сложенном состоянии перегородка выступает как декоративный элемент, при необходимости хозяева могут отделить с ее помощью зону кухни от гостиной. Диван, журнальный стол, Baxter. Столик около дивана, Riva 1920. Напольное покрытие, инженерная доска FINEX
Квартира, над которой работала Ксения Маймина, находится в современном жилом комплексе в стиле минимализм. Интерьер квартиры также был выполнен в минималистичном стиле. Заказчики — молодая пара с двумя детьми — обратились к архитектору с пожеланием адаптировать пространство под комфортное проживание всей семьи. «Детские комнаты должны были учитывать потребности детей, — рассказывает Ксения, — а также быть одинаковыми по площади и наполнению. У заказчиков было конкретное понимание, какой именно должна быть мебель в детских по стилю и цвету. В остальном они доверились моему вкусу и рекомендациям, были открыты к новым, современным решениям».
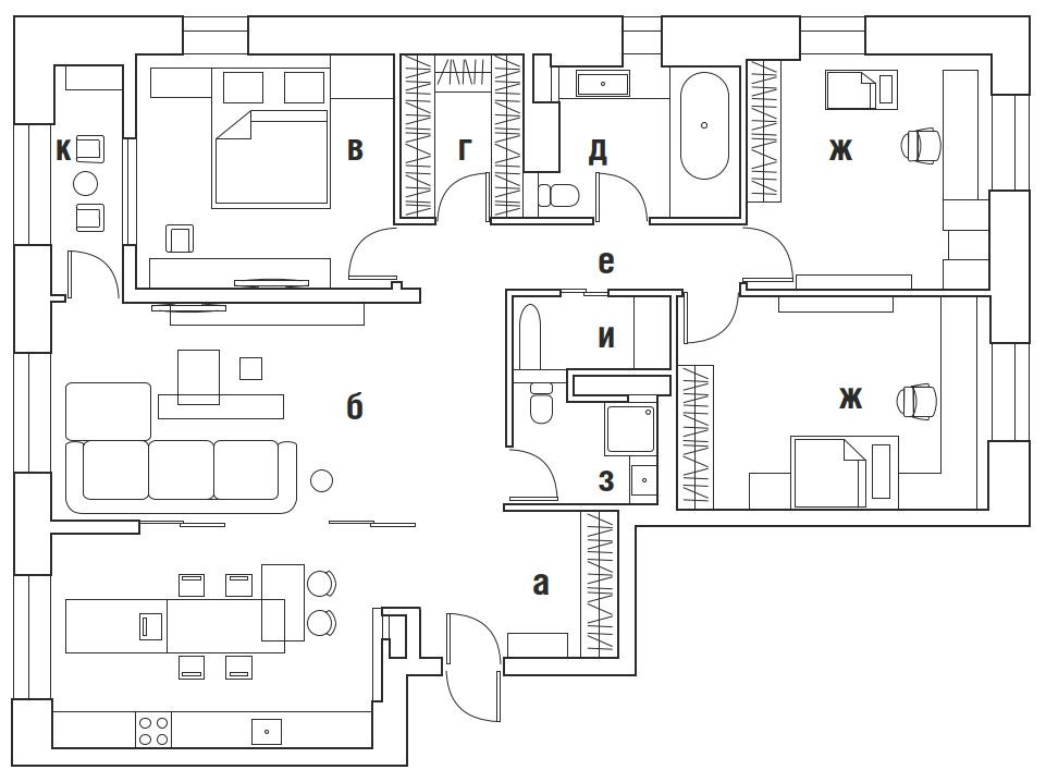
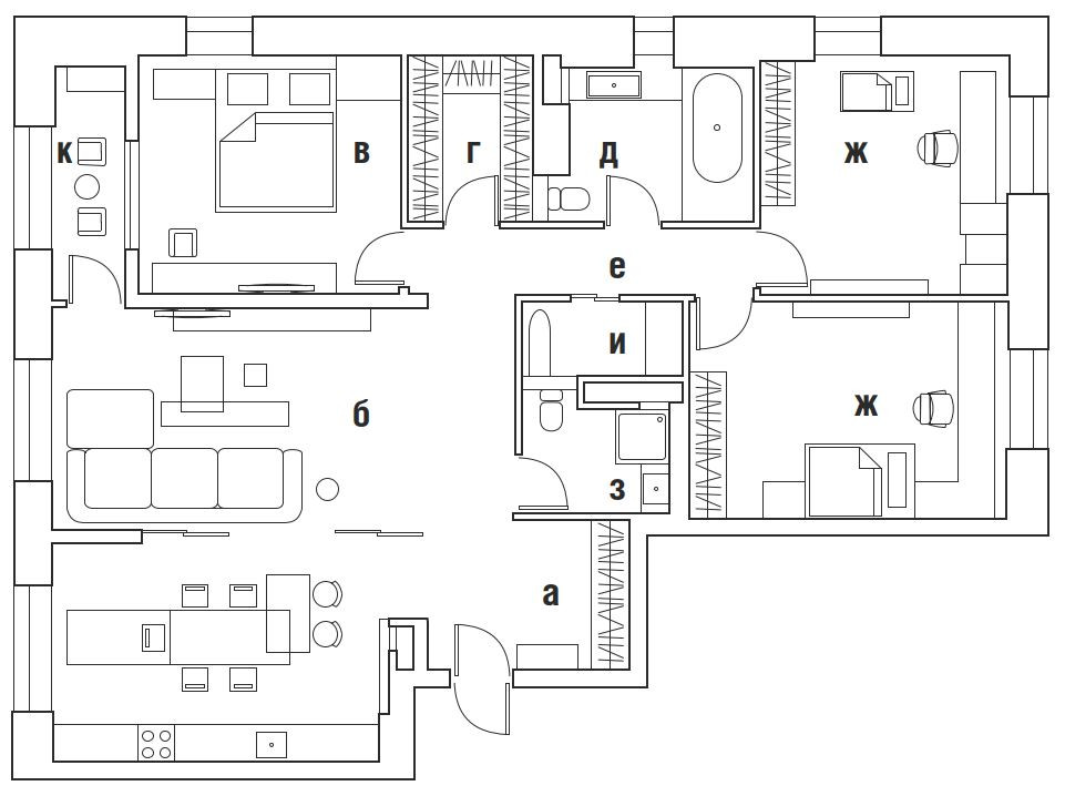
«В квартире есть две внутренние монолитные стены, которые отделяют спальню и одну из детских от общего пространства. Именно от них я отталкивалась в разработке планировки квартиры. Кухня-гостиная, спальня родителей и детские расположились около больших панорамных окон, а хозяйственные помещения спрятались в глубине квартиры. Такая планировка дает возможность не создавать коридоры. Благодаря отсутствию коридора на всей площади квартиры есть естественный свет», — объясняет архитектор планировочное решение.
Автор проекта архитектор Ксения Маймина
Гостиная. Телевизор спрятан в нише под темным стеклом. Дополнительное оборудование, убранное в тумбу под ТВ, подключается через специальный кабель-канал, позволяя скрыть соединяющие провода. На стенах, декорированных панелями из латуни, установлены полки из нержавеющей стали. Кофейный столик из жженого дерева, Riva 1920
Вид на холл из гостиной. В квартире две входные двери, одна из которых покрашена в цвет стены. Ее назначение — спрятать основную дверь, выбивающуюся из концепции интерьера. Справа от входа — раздвижной шкаф с реечными фасадами и латунными ручками, выполненный по эскизам архитектора. Потолочные светильники, ЦЕНТРСВЕТ. Светильники над комодом, Artemide
Отдельное внимание архитектор уделила игре цвета и фактур в пространстве кухни. Фасады кухни Scavolini выполнены из металла, а остров отделан каменным шпоном, что смотрится очень эффектно. Обеденный стол из шпона ясеня изящно оттеняется стульями Kartell из переработанного пластика и светильниками ЦЕНТРСВЕТ
Стены в зоне кухни облицованы металлическими рейками, их размеры и шаг подобраны таким образом, чтобы можно было беспрепятственно открывать спрятанные за ними люки для техобслуживания оборудования. Розетки, как и вентиляционная решетка, также выточены из нержавейки
Холл. Вход в гостевой санузел из холла осуществляется через полностью зеркальную стену, в которой также визуально скрыта дверь
Детская комната. Стены покрашены моющейся краской, Sherwin Williams. Полы, инженерная доска FINEX. Вся мебель создана по эскизам архитектора
Фрагмент детской. «В доме очень много книг, поэтому отдельное внимание было уделено их размещению. В детских комнатах для части книг даже спланированы специальные голубые стеллажи в форме дерева», — говорит архитектор
Детская. Гардероб, стол со стулом выполнены на заказ по эскизам автора проекта
В процессе обсуждения концепции и ключевых предметов интерьера внимание заказчиков привлек синий диван Baxter. Диван стал главным акцентом гостиной, поэтому цветовая гамма формировалась вокруг него. «Латунные панели со вставками из черного стекла составили контрастную пару дивану, — дополняет Ксения, — а остальные предметы и поверхности нейтральных оттенков уравновесили эту композицию».
«В данном проекте мы решили избежать большого количества декора, так как многие элементы интерьера уже являются достаточно декоративными, — рассказывает автор проекта. — Это и брашированные латунные панели в гостиной, рейки из нержавеющей стали на кухне, латунные ручки на реечном фасаде шкафа в холле. В интерьере также использовано много фактур — шлифованная латунь, брашированное, жженое, поеденное короедом дерево. Все они натуральные и экологичные. А стулья на кухне, к примеру, вообще сделаны из переработанных материалов. Это очень важный и актуальный сегодня прием». Гостиную можно отделить от кухни с помощью раздвижной перегородки из четырех створок. В основном она также служит декором.
Спальня. Стены отделаны панелями из нержавеющей стали по эскизам архитектора, керлитом и зеркалом. Часть стен покрашена краской, Sherwin Williams. Кровать, Pianca. Комод и тумбы выполнены по эскизам. Светильники над тумбочками, Vibia. Пол уложен инженерной доской FINEX. Постельное белье, Amalia Home Collection. Плед, Muuto
Ванная комната. «Первое, что бросается в глаза, — это вертикальный сад с живыми растениями. Сад функционирует автоматически, так как подключен к воде и канализации. Специально запрограммированный таймер в нужное время включает капельный полив и свет для растений», — комментирует решение Ксения Маймина. Вдоль стены — гипсовые 3D-панели, покрытые специальной влагостойкой краской. Сантехника и полотенцесушители, Cea Design. Раковина, Edone. Светильник, CVL Luminaires
Фрагмент ванной комнаты. «Из того, что хотелось бы отметить — это душевая система с функцией хромотерапии Ceadesign, в которой струя воды из душевых форсунок окрашивается в разные цвета за счет встроенной подсветки», — отмечает автор проекта. Сантехника, полотенцесушители, Cea Design. Смеситель, скрытый в полке над раковиной, Edone. Светильники, ЦЕНТРСВЕТ. Напольное покрытие, керлит ARCH-SKIN
Фрагмент прихожей-холла
Место для хранения вещей сокращено до минимума, так как владельцы квартиры являются приверженцами минимализма не только в стиле, но и в образе жизни, оставляя только необходимые и часто используемые вещи. «В квартире расположена одна гардеробная для одежды и небольшие шкафы в детских и холле. Большое внимание уделено хранению книг. В детских были спланированы специальные стеллажи для книг в виде деревьев». «Сейчас в интерьерах отдают предпочтение минимализму, простоте форм, отсутствию визуального шума. На мой взгляд, интерьеры с таким стилем — это запрос нашего времени» — резюмирует Ксения.