Дела семейные
Дизайнер Наталья Эрдем оформила интерьер этой московской квартиры в рекордно сжатые сроки, ведь закончить его нужно было к рождению ребёнка.

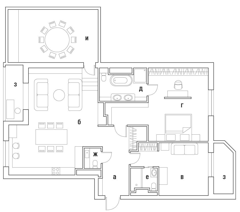
Квартира находится на последнем этаже ЖК «Донской Олимп», заказчики приобрели её из-за большой открытой террасы, прилегающей к гостиной. «Гостеприимные хозяева хотели сделать её гвоздём программы,— замечает автор проекта. —Именно поэтому мне нужно было уделить внимание как функциональности гостиной, так и её визуальному образу, чтобы интерьер стал своего рода развлечением для гостей, привлекал внимание своими дизайнерскими решениями». Чтобы получить большую общественную зону, Наталья объединила прихожую с кухней и гостиной и выделила при входе место для гостевого санузла. Для большего эффекта убрали подоконный блок балкона — так гостиная стала казаться ещё более просторной.









Источником вдохновения при разработке дизайна стал мрамор. Им отделали гостевой санузел, гостиную, пол в прихожей и ванную комнату хозяев. Чтобы подчеркнуть природный рисунок камня, паркет, мебель и кухню подобрали спокойных, нейтральных цветов и фактур. Органическим линиям мрамора вторят люстра из металлических ветвей с каплями из хрусталя и предметы декора. «Когда я работала над проектом, меня зацепила фотография с чёрным мрамором, —рассказывает Наталья. — Я показала её заказчикам и услышала от них, что это слишком смелое решение, такие вещи разве что для журналов подойдут, но им очень нравится идея. В течение долгого времени меня не покидала эта мысль, и я всё-таки сделала первые наброски именно с использованием чёрного мрамора. И, как оказалось, не зря: заказчики сразу же утвердили концепцию». Найти нужный мрамор было сложнее, чем предполагала дизайнер. В силу своего природного происхождения рисунок камня каждый раз уникальный, а хотелось максимально приблизиться к утверждённому варианту, нужно было найти слэбы с определённым, изгибающимся орнаментом и с бежевыми прожилками. Кроме характерных для этого типа мрамора черт и серо–чёрного цвета, он должен был раскладываться зеркально — в виде бабочки. Объездив все склады в Подмосковье, подходящий камень Silver Wave дизайнер нашла в компании MAGMASTONES.
Сложностей хватало и с реализацией проекта. Хозяева — молодая семейная пара — мечтали о том, чтобы въехать в квартиру к рождению нового члена семьи. «Мы должны были уложиться в срок — до рождения ребёнка: разработать проект, визуализацию, закончить полностью ремонт, подобрать предметы обстановки—в общем, сделать всё под ключ,— продолжает рассказ Наталья.— И хотя этот интерьер стал для меня своего рода экспериментом (до этого я не работала со столь сложной цветовой гаммой), по завершении работ заказчики сказали, что всё вышло именно так, как они хотели. Интерьер получился броским, но при этом успокаивающим, контраст чёрных поверхностей со светлым полом и стенами смотрится вызывающе, но, как говорят сами хозяева, в нём им уютно и комфортно».
«Современный стиль, в котором я работаю, как мне кажется, не имеет временных рамок, такие интерьеры даже спустя время выглядят актуально. Самое важное, чтобы интерьер не имел «года выпуска». Для этого я часто использую монохромные цвета, а яркость ему добавит декор, который, кстати, можно легко сменить под сезон или настроение хозяев».
Общая площадь 120 м2

Автор проекта дизайнер Наталья Эрдем, г. Москва
Фото: Михаил Степанов, стилист: Елена Илюхина