Атмосфера жизни
Интерьер вне времени… что его формирует? Идеи архитекторов или особая атмосфера места, философия образа жизни заказчиков или логика предметного наполнения… В проекте загородного дома для большой семьи команда бюро AMG-Project предложила свое решение этого вопроса

Соавторы и основатели бюро AMGProject архитекторы Ирина Мавродиева и Артур Гога считают, что им очень повезло участвовать в проекте с самого начала — это дало возможность сформировать дом как единый образ, создать в нем гармонию, присущую семье заказчика.
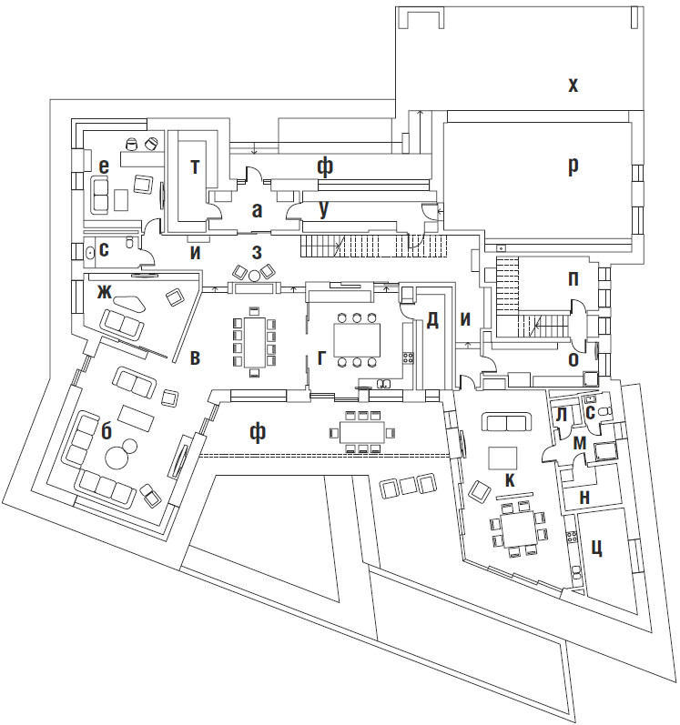
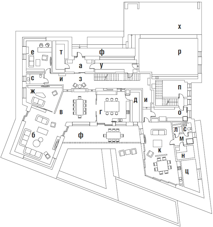
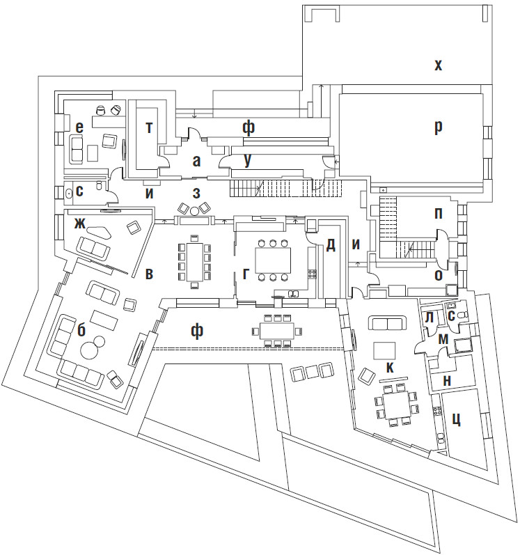
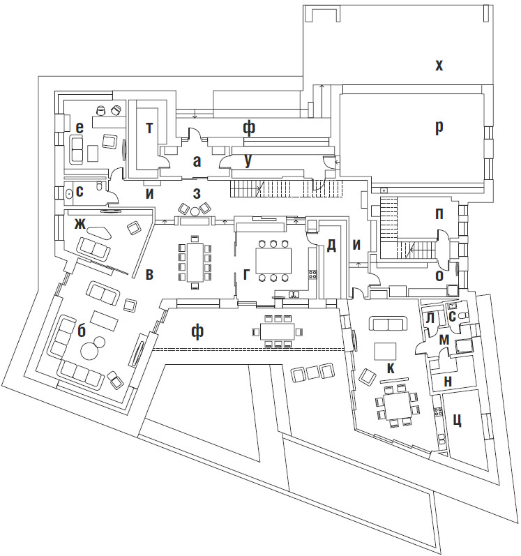
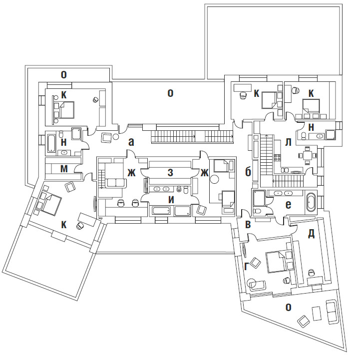
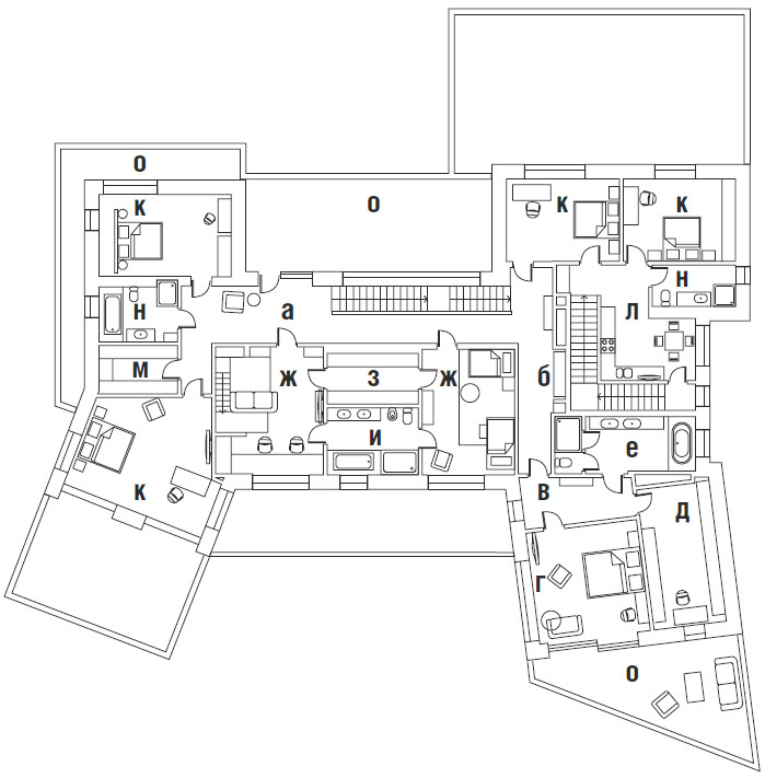
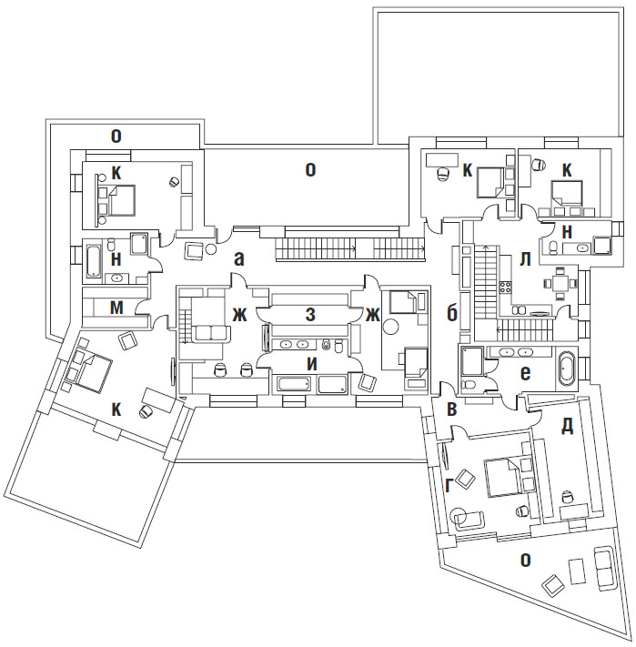
Просторный дом разместили на участке, учитывая его освещенность и расположение по сторонам света — главный фасад выходит на север, а внутренний двор на юг. Трапециевидная, расклешенная форма участка раскрывается на восток и запад, что дало возможность разместить здание так, чтобы утром можно было просыпаться с первыми лучами восходящего солнца, а вечером любоваться закатом, что, по мнению авторов, очень важно для атмосферы дома в целом. «Трапециевидная форма участка стала основой для формирования геометрии плана дома, — объясняет Ирина Мавродиева. — Эта форма имеет свойство расширять и менять перспективу и создает более сложное пространство внутри и снаружи. Можно выделить два направления, по которым развивался проект: первое — это разработка планировочного решения с грамотным зонированием помещений и видовыми точками, формирующими атмосферу внутри дома. И второе — это эстетика фасадов с применением отделочных материалов и цветовой гаммы перетекающих в интерьер».





Заказчики — семейная пара с тремя детьми — принимали активное участие в процессе проектирования их будущего жилья. Планировочное решение было продумано с точки зрения комфорта и логики взаимодействия помещений. Заходя в дом, практически сразу попадаешь в гостиную-столовую, из панорамных окон которой открывается вид на террасу и ландшафт. Слева от обеденной зоны за стеклянными раздвижными дверьми располагается кухня, условно отделяющая гостиную и столовую от спа-зоны с открытой террасой. На первом этаже также расположился кабинет главы семьи, а для детей предусмотрена игровая комната с выходом к уличной детской площадке. Второй этаж занимают приватные помещения — спальни для членов семьи и их гостей со своими гардеробными и санузлами.











«Мы хотели создать интерьер вне времени — со своей средой, атмосферой, который бы отражал философию образа жизни владельцев дома. Спроектировать дом для большой семьи — это как написать хороший сценарий: сформировав идею, ее нужно бережно привести к реализации. Думаем, можно сказать, что с первого дня мы с заказчиками были заодно, поэтому все решения принимались легко и в итоге получился прекрасный дом — отличный результат совместных усилий», — подытоживают Ирина Мавродиева и Артур Гога.
Общая площадь 800 м2


Авторы проекта архитекторы Ирина Мавродиева и Артур Гога, бюро AMG-Project (www.amgpro.ru)
Изготовление камина Вячеслав Камышев
Комплектация, поставка мебели и освещения компания International Trading Group (ITG)
Поставка ковров Jerome Botanic