Продолжение традиций
Маленькая московская двушка расположена в одном из красивейших домов на Кутузовском проспекте. Дом являет собой прекрасный образец сталинского ампира. Именно это, а также окружающая архитектура в той же стилистике подсказали лейтмотивы дизайна. Особой темой декора стали знаменитые высотки

Интеллигентная супружеская пара выбрала удачно расположенное в центре города жильё с метражом, достаточным для комфортного проживания вдвоём (дети взрослые и живут отдельно). Требовались удобная спальня, функциональная современная кухня, достаточное количество мест для хранения одежды.
Перепланировка. Перегородку, отделявшую центральную комнату от кухни и коридора, убрали, тем самым создав просторную студию. Проём между кухней и прихожей ликвидировали — это позволило скомпоновать кухонный гарнитур по наиболее функциональной Г-образной схеме. Туалет и ванную объединили. В дальнем конце спальни, за шторой, оборудовали гардеробную. Дань стилистике «сталинки» — устроенная в глубине студии и оформленная как нарядный портал неглубокая ниша.
Тема ретро поддержана оригинальным, но немногословным дизайном светильников, изящными решениями текстиля в оттенках, присущих ар деко, густо-коричневыми оконными рамами и характерным решением радиаторов
Ремонт. Квартиру пришлось освободить от многочисленных «слоёв». Новые перегородки возвели из пеноблоков, потолки выровняли гипсокартоном и штукатуркой и оформили гипсовыми молдингами. Наборный паркет в комнатах и кухне отциклевали и покрыли паркетным маслом. В санузле пришлось провести радикальную замену сантехнических коммуникаций и сменить большую часть покрытий. Стены в комнатах частично окрасили, частично оклеили обоями. Установили новые межкомнатные двери и радиаторы отопления.








Дизайн. Атмосферу ар деко с элегантными отсылками к «сталинской классике» создают строгая планировка, сдержанная прохладная гамма с продуманными градациями оттенков коричневого, серого, песочного, дополненных вкраплениями цвета утиного яйца (сложного зелёно-голубоватого), тщательно подобранные аксессуары. Системы хранения позволяют без труда поддерживать «чистоту стиля»: в прихожей за это отвечает огромный шкаф для верхней одежды и обуви, в нём также спрятана стиральная машина. Гардеробная комната отделена от спальни занавесом на электрокарнизе. В кухне с хранением успешно справляются напольные и настенные шкафы; строгие филёнки и светлые оттенки их фасадов поддерживают впечатление простора и классической безмятежности. Привлекает внимание деликатная проработка деталей. Так, потолочная гипсовая люстра в спальне и закарнизный свет в ванной создают мягкое, рассеянное освещение, акцентные зоны выделены локальными светильниками. Дизайн портьер с интересными комбинациями шерстяных тканей, кисеи, тесьмы в технике ришелье специально создавался для этого проекта.
Шарм в интерьерах создают дизайнерские обои — с рельефным узором за изголовьем кровати, структурным рисунком в прихожей, шелковистой фактурой хлопка и льна в жилых комнатах
Рассказывает автор проекта
Дизайнер Елена Ефанова
Главной и деликатной задачей было сохранение гармонии между экстерьером и интерьером. Дом — образец сталинского ампира, построен по проекту архитектора Зиновия Розенфельда. Однако исходное планировочное решение квартиры было изменено в ходе многочисленных предыдущих ремонтов. Сначала мои заказчики хотели ограничиться косметическими работами. Предполагалось отреставрировать пол, но сохранить плитку в прихожей и санузле. Но при внимательном осмотре уже после начала строительных работ оказалось, что сантехприборы работают некорректно, разводка труб выполнена без должных уклонов. Это потянуло за собой практически полную переделку санузла. В отделке учитывалась каждая мелочь: так, электрощиток скрыт за резным панно «Птица-хранительница очага» в русском стиле.
***
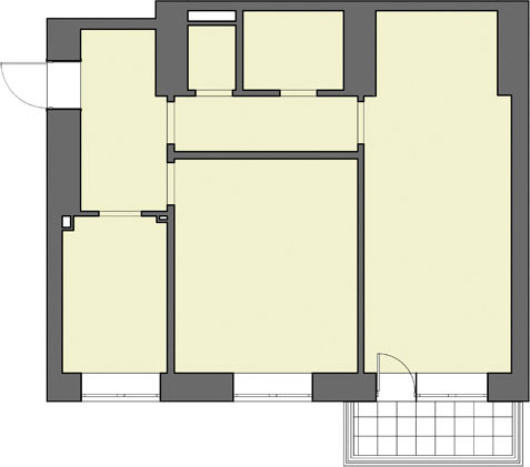
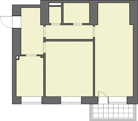
План до ремонта

Технические данные
до ремонта:
- общая площадь — 55,4 м2
- высота потолков — 3 м
после ремонта:
- общая площадь — 57,6 м2
- высота потолков — 2,92 м
Весь объект
- Двери: UNION
- Стены: новые перегородки: пеноблоки
- Потолки: гипсокартон, штукатурка
- Потолочные молдинги: гипс
- Радиаторы: Arbonia
- Электроустановочные изделия: Dynasty (ABB)
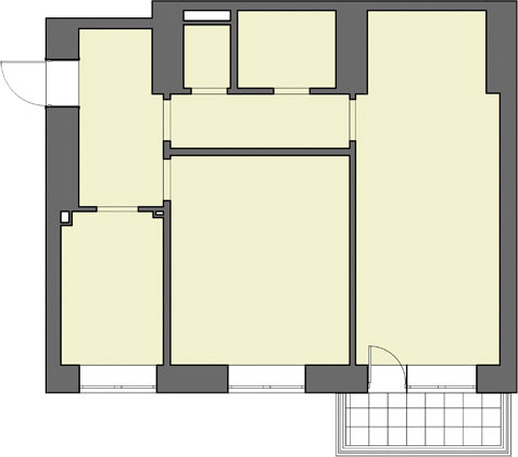
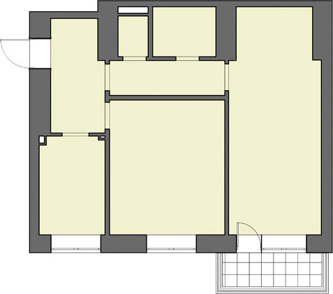
План после ремонта

Прихожая — 6 м2
- Мебель: банкетка, вешалки, зеркало, плечики — Schönbuch, шкаф Loftmark, фурнитура Furnitek
- Стены: обои Spectra (Arte), краска Ressource
- Оборудование: стиральная машина Samsung
- Светильники: люстра Arcipelago (Contardi)
- Аксессуары: декоративная дверца электрощитка «Птицахранительница очага» (авторская разработка Татьяны Кореляковой)
Cанузел — 4,6 м2
- Пол: керамогранит Chateau (Emil Ceramica)
- Стены: плитка Soho Mix, Soho Blanco (Mainzu), краска Ressource
- Светильники: карниз Orac Decor c подсветкой, подвесные Volle (Masiero)
- Мебель: антиквариат
- Сантехническое оборудование: ванна Villeroy & Boch, инсталляция TECE, унитаз Laufen, перегородка Hüppe, смесители Jorger
- Оборудование: полотенцесушитель Margaroli
- Аксессуары: зеркало (нержавейка) — на заказ (Ferrum-style)
Гардеробная — 6,4 м2
- Пол: наборный паркет
- Стены: краска Ressource
- Светильники: накладные технические
- Текстиль: портьеры Holland and Sherry, портал — на заказ (Loftmark)
Спальня — 16,5 м2
- Пол: наборный паркет
- Мебель: кровать Nathalie (Flou), прикроватные столики «Паужна» (авторская коллекция Светланы Поповой)
- Стены: обои Enigma (Arte), краска Ressource
- Светильники: гипсовая люстра Atelier Sedap, бра и потолочные светильники (Studio Italia Design)
- Текстиль: портьеры Holland and Sherry, тесьма Samuel & Sons
- Аксессуары: ковёр Iran Carpets, бокал «Паужна» (авторская коллекция Светланы Поповой), вазы Bosa
Гостиная — 18 м2
- Пол: наборный паркет
- Мебель: стулья Bilou Bilou, диван Vibieffe, стол BoConcept, зеркало Eichholtz
- Стены: обои Solitaire (Textil Rasch)
- Светильники: люстра Stilux, бра Sigma L2
- Текстиль: портьеры из шерстяной ткани цвета «утиное яйцо» с меланжевой кисеёй — на заказ
- Аксессуары: картина «Москва» (авторская печать на дереве — Владимир Клавихо-Телепнёв), ковёр Iran Carpets
Kухня — 6,1 м2
- Пол: наборный паркет
- Мебель: кухонные модули Nobilia, столешница — кварцевый камень Techno Stone
- Бытовая техника: варочная панель, духовка, вытяжка, посудомоечная машина — Bosch, холодильник Liebherr, раковина и смеситель — Blanco
- Стены: краска Ressource
- Светильники: люстры Garrett (Savoy House)
Экспресс-подбор
Тему ретро, навеянную местонахождением квартиры, подкрепляют элегантная цветовая палитра, мебель, двери, обои и текстиль классических очертаний или сюжетов


Дизайнер: Елена Ефанова. Фото: Василий Буланов, Am.Pm, York (2), Neogreen, H&M Home (2), Maisons du Monde (2), Cosyroom, Delightfull, ML
