Лесное эхо
Мужской интерьер — если он выполнен не в стиле лофт или хай-тек — часто рождается труднее женского в силу особого отношения к декоративным элементам. В этой квартире архитектору удалось создать органичную среду обитания благодаря игре форм, цвета и фактур

Гармоничный интерьер сложился подобно пазлу благодаря стечению обстоятельств. Из окон жилища на десятом этаже открывается шикарный вид на парковую зону Минска. Изначально однушка в монолитно-каркасном доме имела свободную планировку. Заказчик, молодой мужчина, руководитель в IT-сфере, предпочитающий приглушённый свет и, соответственно, насыщённые тёмные тона, доверил её обустройство профессиональному архитектору.
Оригинальным украшением кухни-гостиной является «стол-река», выполненный на заказ из натурального дерева. Именно такой дизайн был принципиально важен для клиента
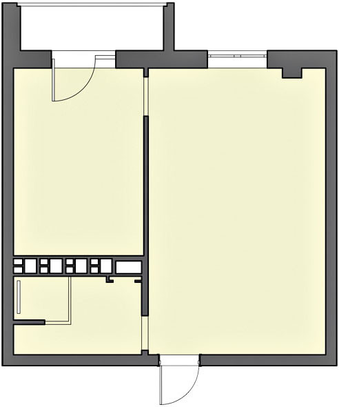
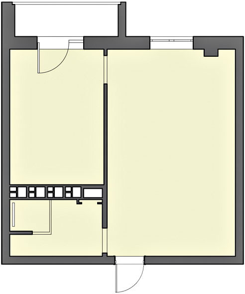
Перепланировка. Основные функциональные задачи, которые предстояло решить в данном интерьере, сводились к удобству проведения досуга с друзьями за настольными играми и плэйстэйшен, а также к необходимости создания отдельной спальни. Конфигурация квартиры позволила реализовать задуманное оптимальным образом: выделить кухню-гостиную с частично отгороженной входной зоной и отдельную спальню. Место санузла было определено расположением стояков и окон. Кроме того, в присоединённой лоджии удалось сделать полноценный рабочий кабинет: её утеплили и среди прочего оконный блок заменили на новый с коэффициентом сопротивления теплопередаче, близким к единице.







Ремонт. При реализации дизайн-проекта особо грязных ремонтно-строительных работ производить не пришлось. В квартире уже была выполнена стяжка, а все неровности стен и потолка, а также электропроводку, получилось скрыть за гипсокартоном и отделочными панелями. (Конечно, чтобы сделать переход между паркетной доской и плиткой без стыков, а в зоне кухне провести работы по гидроизоляции, потребовалось подливать самовыравнивающийся состав, но это были мелочи по сравнению с возможным демонтажом конструкций или мокрыми процессами выравнивания.) Стену, разделяющую кухню-гостиную и спальню, выполнили из гипсокартона на металлическом каркасе: в ней следовало спрятать множество самых разных коммуникаций (и трубы, и электрику). Перегородка из кирпича или пеноблока просто не выдержала бы такого «решета» — количества проделанных каналов. Потолок опустили на 6 см, чтобы выровнять перепад и провести коммуникации, и зашили листами гипсокартона. Для размещения встроенных кондиционеров и в гостиной, и в спальне из того же гипсокартона сделали опуски близ окон.
Дизайн. Современный интерьер квартиры сочетает в себе элементы лофта (бетонные панели за диваном, трековые системы освещения, плитку под бетон в душевой и кухне) и экотемы. В отделке использованы простые материалы максимально натуральных, природных оттенков (шпон дерева, бетон, камень).
Несмотря на имитацию скальной породы — дань мужскому интерьеру — спальня смотрится уютно благодаря тёплым цветовым акцентам текстиля
Рассказывает автор проекта
Архитектор-дизайнер Светлана Артамонова
Самым приятным в работе над этим проектом было стопроцентное доверие клиента. В нашем случае требовался архитектурный интерьер, то есть спроектированный за счёт пространства, объёмов и форм. Для него был не нужен декор. Именно поэтому в квартире нет ни одной вазы, ни одной картины. Ничего не принесено специально для украшения, всё уже «вплетено». Заказчик и не собирался обживать пространство добавлением или демонстрацией каких-то личных вещей, и всё сложилось наилучшим образом. Мы согласовали проект с первой визуализации и затем чётко ей следовали. Важно отметить, что во всей квартире доминирует один цвет, который комбинируется с другими оттенками и фактурами и даёт интересные решения. Глухой зелёный и дерево для кухни-гостиной, глухой зелёный и пастельные тона для спальни, глухой зелёный и терракот в санузле и прихожей.
Утро вечера мудренее
Чтобы создать оптимальное освещение, архитектор продумала каждую «историю», которую заказчик будет проживать в квартире. Для каждой зоны получилось своё, особенное решение. В санузле, например, лишённом естественного света, его аналогом стала тёплая, как бы вечерняя, расслабляющая (цветовой температуры порядка 3500 К) рассеянная подсветка. Источник — светодиодные ленты — расположен под подшивным потолком. Кроме своего прямого назначения подсветка удачно оттеняет отделку тёплых тонов. Зеркало над раковиной дополнено встроенной по периметру светодиодной подсветкой типа гримёрной, не отбрасывающей теней, которая характеризуется холодным светом (цветовой температуры порядка 6000 К). Как известно, холодный свет бодрит, что важно для начала удачного дня.
***
План до ремонта

Технические данные
до ремонта:
- общая площадь — 48,2 м2
- высота потолков — 2,7 м
после ремонта:
- общая площадь — 48,2 м2
- высота потолков — 2,6 м
Весь объект
- Двери: скрытого монтажа
- Стены (в том числе новые перегородки): гипсокартон
- Шкафы встроенные: на заказ
- Светильники: «Арлайт»
План после ремонта

Лоджия — 3,5 м2
- Пол: плитка Imola
- Мебель: стул Kingstyle
- Спальня — 12,9 м2
- Пол: паркетная доска Coswick
- Стены: барельеф «Скала» (irdo.by)
- Мебель: кровать с подъёмным механизмом, шкаф — на заказ (компания Everest)
Спальня — 12,9 м2
- Пол: паркетная доска Coswick
- Стены: барельеф «Скала» (irdo.by)
- Мебель: кровать с подъёмным механизмом, шкаф — на заказ (компания Everest)
Кухня-гостиная — 21,1 м2
- Пол: керамическая плитка Italon, паркетная доска Coswick
- Потолок: гипсокартон, краска
- Стены: краска, бетонные панели beton
- Мебель: кухонный гарнитур — на заказ (компания «Эверест»), фурнитура Blum, стулья izum
- Светильники: «Арлайт»
- Бытовая техника: Neff
Прихожая — 5,6 м2
- Пол: керамическая плитка Italon
- Конструкции: декоративная перегородка, фанерованные шпоном рейки — на заказ (компания Moabi)
Санузел — 5,1 м2
- Пол: керамическая плитка Italon
- Стены: керамическая плитка Italon, Imola
- Сантехника: Tres
- Мебель: корпусная — на заказ (компания Everest)
Экспресс-подбор
Лаконичность, брутальность жилой среды подчёркивают имитирующие бетон материалы отделки (керамогранит, стеновые панели) и необычные, но сугубо утилитарные предметы мебели (диван, тумба под ТВ).


Архитектор-дизайнер: Светлана Артамонова. Фото: interphoto.by, Rondine Group (2), Fabbian (2), WallArt (2), Lyon Béton, Gliver, Tarkett (2), Pranzo, Loft-Concept, LedRus
